Facebook Instagram YouTube

Dvosoban
stan tip Lps

Pošaljite upit
Arrow Arrow Hover
3D Render
3D prikaz 3D Icon

Površina: 52,00m²

*Svi prikazani podaci, tekstovi, vizualni materijali i ilustracije služe isključivo u informativne svrhe. Sve slike, grafički prikazi i renderi su informativnog i ilustrativnog karaktera i mogu se razlikovati od konačnog izgleda. Investitor zadržava pravo izmene svih sadržaja, specifikacija, materijala i tehničkih detalja bez prethodne najave.

Namena prostorija

P (m²)

1
Hodnik
2,50
2
Kupatilo
4,60
3
Kuhinja
4,10
4
Dnevni boravak
21,00
5
Spavaća soba
9,50
6
Terasa
10,30
UKUPNO
52,00

Osnova stana


Osnova stana

Preuzmite brošuru


Orijentacija stana


Orijentacija stana

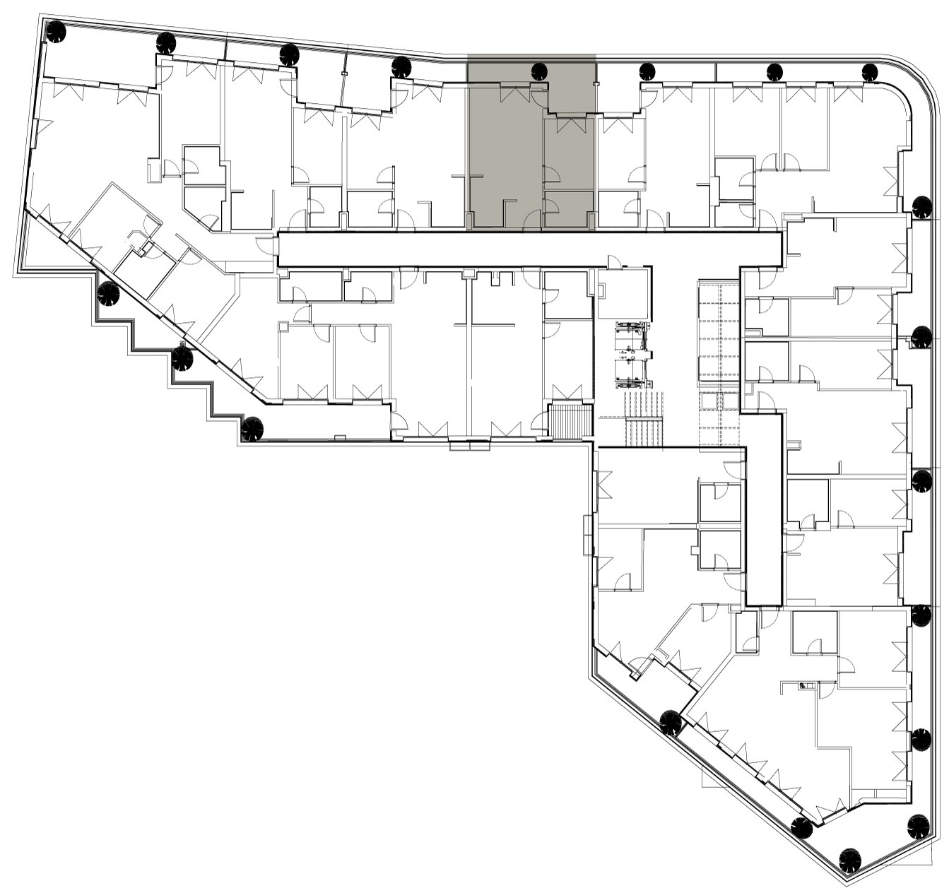
Pozicija na spratu


Pozicija na spratu

Pošaljite upit za stan

Kontaktirajte nas