Facebook Instagram YouTube

Dvosoban
stan tip Kps

Pošaljite upit
Arrow Arrow Hover
3D Render
3D prikaz 3D Icon

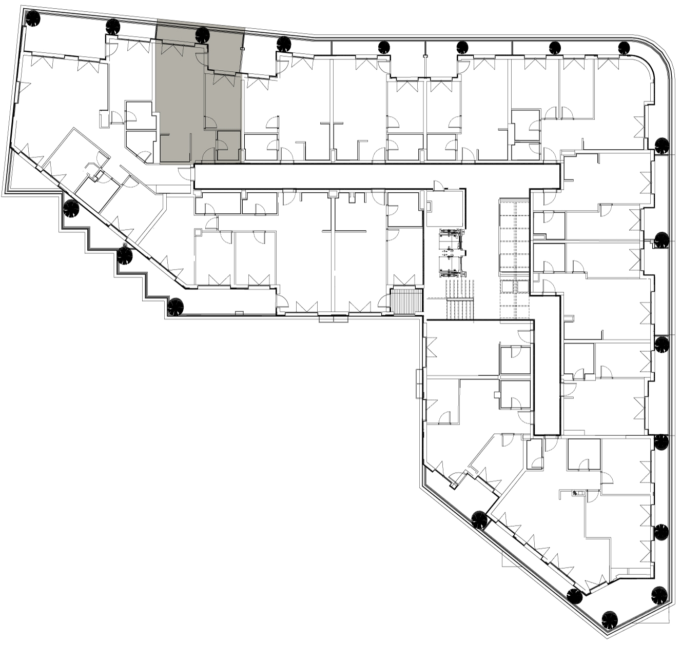
Površina: 53,10m²

*Svi prikazani podaci, tekstovi, vizualni materijali i ilustracije služe isključivo u informativne svrhe. Sve slike, grafički prikazi i renderi su informativnog i ilustrativnog karaktera i mogu se razlikovati od konačnog izgleda. Investitor zadržava pravo izmene svih sadržaja, specifikacija, materijala i tehničkih detalja bez prethodne najave.

Namena prostorija

P (m²)

1
Hodnik
3,70
2
Kupatilo
4,20
3
Kuhinja
4,30
4
Dnevni boravak
21,80
5
Spavaća soba
9,70
6
Terasa
10,20
UKUPNO
53,10

Osnova stana


Osnova stana

Preuzmite brošuru


Orijentacija stana


Orijentacija stana

Pozicija na spratu


Pozicija na spratu

Pošaljite upit za stan

Kontaktirajte nas